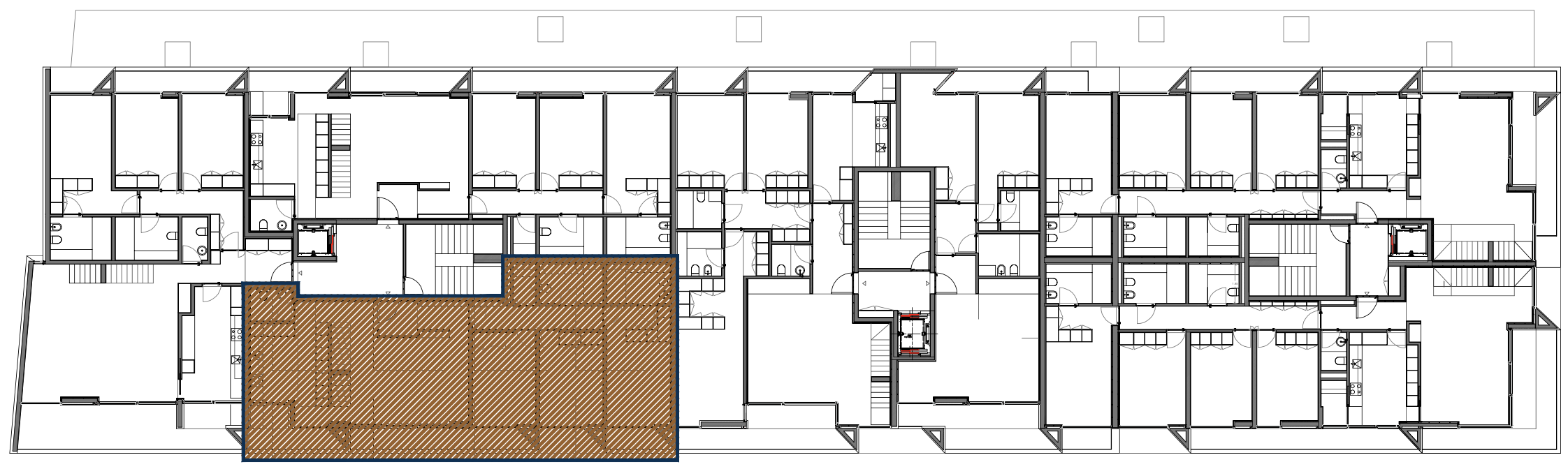
PISO 3 - BLOCO C
penthouse T3 (fr)
APARTAMENTO
TERRAÇO
GARAGEM



PREÇO: 895 000.00€
APARTAMENTO
- TIPOLOGIA T3
- ORIENTAÇÃO Poente
- ÁREA INTERIOR PISO INFERIOR 145.42 m²
- ÁREA INTERIOR PISO SUPERIOR 56.15 m²
- ÁREA DE VARANDAS 15.40 m²
- ÁREA TERRAÇO (incluíndo piscina) 39.10 m²
- ÁREA TOTAL 259.34 m²
- INSTALAÇÕES SANITÁRIAS 4
GARAGEM
- TIPO Garagem fechada privativa
- ÁREA 47.27 m²
Nota: As áreas interiores encontram-se medidas pelo eixo geométrico das paredes limite de cada apartamento.